10789 kr
76.5 m²
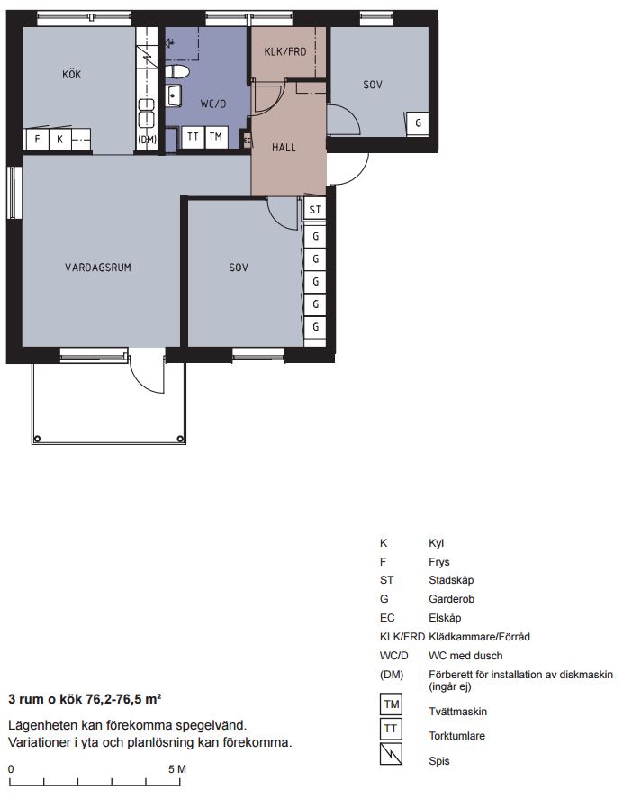
3
1
2026-02-01
Sjövallagränd 4B / Kävlinge
Sjövallagränd 4B
Nu har du möjlighet att flytta in i en mycket trevlig och ljus tvårumslägenhet på andra våningen i populära Sandhammaren, Kävlinge. Här bor du bekvämt med bra planlösning, gott om förvaring och närhet till både service och natur.
LÄGENHETEN
Lägenheten välkomnar dig med en rymlig hall utrustad med städskåp och flera garderober som ger goda förvaringsmöjligheter.
Badrummet är halvkaklat och utrustat med dusch, tvättmaskin och torktumlare som tillhör lägenheten.
Det större sovrummet erbjuder gott om plats och förvaring.
Vardagsrummet är rymligt med stort ljusinsläpp och utgång till balkong – perfekt för avkoppling.
Köket är stilrent med luckor i ljust träslag och plats för matbord, vilket gör det både praktiskt och trivsamt.
Observera att bilderna är tagna i en liknande lägenhet.
KOLLEKTIVTRAFIK & OMGIVNING
Sandhammaren ligger centralt i ett expansivt Kävlinge, med närhet till butiker, restauranger, bibliotek, apotek, vårdcentral, skolor och förskolor.
Här finns även ett brett utbud av fritidsaktiviteter för både barn och ungdomar, samt grönskande strövområden längs Kävlingeån.
Pendlingsläget är optimalt med nära till stationen där tåget snabbt tar dig till Malmö, Lund eller Helsingborg.
BEKVÄMLIGHETER
✔️ Ljus lägenhet på andra våningen
✔️ Rymlig hall med garderober & städskåp
✔️ Halvkaklat badrum med dusch, tvättmaskin & torktumlare
✔️ Stort sovrum med bra förvaring
✔️ Vardagsrum med balkong & fint ljusinsläpp
✔️ Stilrent kök med plats för matbord
✔️ P-plats & carport att hyra (i mån av tillgång)
✔️ Nära till skolor, förskolor & service
✔️ Grönskande promenadstråk längs Kävlingeån
✔️ Kort gångavstånd till stationen
Hyran som anges är 2025 års hyresnivå.
Bekvämligheter
Ingår i hyran
Husregler
Alla lediga lägenheter
Kommuner
Inflyttningsdatum
Sortera efter:
Senast Publicerad Inflyttningsdatum Hyra (lägst till högst) Hyra (Högst till lägst)Sortera Efter:
-
Falun
Jungfruvägen 163 A
Inflytt 2026-02-013 ROK 75.5 m² 10724 kr / mån -
Falun
Norra Järnvägsgatan 23 B
Inflytt 2026-02-011 ROK 30 m² 4803 kr / mån -
Falun
Jungfruvägen 99 A
Inflytt 2026-03-012 ROK 62.9 m² 9289 kr / mån -
Västerås
Ägirgatan 4
Inflytt 2026-02-012 ROK 43 m² 8895 kr / mån -
Falun
Jungfruvägen 95 B
Inflytt 2026-02-012 ROK 65 m² 6685 kr / mån -
Västerås
Öster Mälarstrands allé 38
Inflytt 2026-01-012 ROK 53.5 m² 10530 kr / mån -
Västerås
Notuddskajen 3
Inflytt 2026-02-013 ROK 65 m² 11751 kr / mån -
Oskarshamn
Hultenheims Väg 12
Inflytt 2026-02-013 ROK 79.1 m² 9771 kr / mån -
Helsingborg
Regementsvägen 10B
Inflytt 2026-02-012 ROK 54.7 m² 8376 kr / mån -
Falun
Jungfruvägen 149 B
Inflytt 2026-02-014 ROK 95.6 m² 12591 kr / mån -
Gävle
Brändströmsgatan 10 B
Inflytt 2026-01-012 ROK 62 m² 8565 kr / mån -
Gävle
Nygårdsvägen 14
Inflytt 2026-01-012 ROK 60 m² 6946 kr / mån -
Gävle
Nygårdsvägen 6
Inflytt 2026-01-011 ROK 43 m² 6807 kr / mån -
Gävle
Holmsundsallén 3
Inflytt 2026-01-013 ROK 77 m² 8489 kr / mån -
Helsingborg
Annerovägen 24 A
Inflytt 2026-02-022 ROK 52.6 m² 5371 kr / mån -
Tierp
Claes Grills Väg 4A
Inflytt Enligt ö.k.3 ROK 72 m² 9000 kr / mån -
Haninge
Rundmössegränd 3
Inflytt 2026-02-014 ROK 92 m² 16338 kr / mån -
Nykvarn
Champinjonvägen 7
Inflytt 2026-01-013 ROK 55 m² 8914 kr / mån -
Nykvarn
Champinjonvägen 9
Inflytt 2026-01-013 ROK 55 m² 8914 kr / mån -
Falun
Jungfruvägen 133 B
Inflytt 2026-02-012 ROK 64.6 m² 9432 kr / mån -
Borås
Liljebergsgatan 11
Inflytt 2026-01-313 ROK 80 m² 8170 kr / mån -
Södertälje
Nedre Villagatan 15
Inflytt 2025-12-011 ROK 40 m² 7261 kr / mån -
Linköping
Söderleden 39D
Inflytt 2026-01-012 ROK 54 m² 9627 kr / mån -
Kampanj
Skellefteå
Gruvgatan 17C
Inflytt 2025-12-012 ROK 35 m² 6593 kr / mån -
Sundsvall
Klintgatan 9
Inflytt 2026-01-012 ROK 60 m² 8369 kr / mån -
Söderhamn
Oxtorgsgatan 6A
Inflytt Enligt ö.k.4 ROK 91.9 m² 13113 kr / mån -
Söderhamn
Oxtorgsgatan 8E
Inflytt 2026-01-014 ROK 92.1 m² 11645 kr / mån -
Skellefteå
Uppfinnarvägen 4
Inflytt 2026-02-012 ROK 67 m² 6476 kr / mån -
Söderhamn
Oxtorgsgatan 2A
Inflytt 2025-12-011 ROK 37.8 m² 4139 kr / mån -
Söderhamn
Oxtorgsgatan 6A
Inflytt 2025-12-011 ROK 40.8 m² 4300 kr / mån -
Höganäs
Lantmannagatan 4 F
Inflytt 2026-02-014 ROK 109 m² 12286 kr / mån -
Landskrona
Bredgatan 3B
Inflytt 2026-02-014 ROK 107 m² 10294 kr / mån -
Halmstad
Badhusgatan 16
Inflytt 2026-02-013 ROK 89 m² 10486 kr / mån -
Landskrona
Järnvägsgatan 69
Inflytt 2026-02-153 ROK 76 m² 9735 kr / mån -
Haninge
Hurtigs väg 21
Inflytt 2026-01-012 ROK 67 m² 14017 kr / mån -
Halmstad
Westmansgatan 39
Inflytt 2026-02-011 ROK 27.5 m² 3615 kr / mån -
Halmstad
Bergsgatan 11 B
Inflytt 2026-01-011 ROK 22 m² 2674 kr / mån -
Kampanj
Skellefteå
Gruvgatan 17B
Inflytt 2025-11-013 ROK 72 m² 11007 kr / mån -
Kävlinge
Sjövallagränd 4B
Inflytt 2026-02-013 ROK 76.5 m² 10789 kr / mån -
Kävlinge
Nordanväg 48 A
Inflytt 2026-01-013 ROK 80.5 m² 7959 kr / mån -
Jönköping
Jaktfalksgatan 4J
Inflytt 2026-02-012 ROK 48 m² 8010 kr / mån -
Haninge
Rundmössegränd 9
Inflytt 2026-01-013 ROK 55 m² 11475 kr / mån -
Linköping
Westmansgatan 98
Inflytt 2026-01-013 ROK 82.3 m² 12400 kr / mån -
Avesta
Eriksgatan 10 B
Inflytt Enligt ö.k.2 ROK 55 m² 8458 kr / mån -
Avesta
Corneliusgatan 23 C
Inflytt 2026-01-011 ROK 40 m² 6723 kr / mån -
Östersund
Kyrkgatan 44
Inflytt 2026-02-011 ROK 30 m² 6019 kr / mån -
Avesta
Åsgårdsvägen 11 A
Inflytt 2026-01-011 ROK 37.5 m² 4493 kr / mån -
Avesta
Åsgårdsvägen 11 A
Inflytt 2026-01-012 ROK 58.6 m² 6162 kr / mån -
Avesta
Åsgårdsvägen 15 A
Inflytt 2025-11-012 ROK 58.6 m² 8756 kr / mån -
Nynäshamn
Telivägen 3
Inflytt 2026-02-012 ROK 40.3 m² 7539 kr / mån -
Tierp
Claes Grills Väg 10B
Inflytt 2025-11-012 ROK 60 m² 8064 kr / mån -
Kävlinge
Nordanväg 26 A
Inflytt 2026-02-011 ROK 41.5 m² 6449 kr / mån -
Kävlinge
Nordanväg 32 B
Inflytt 2026-02-013 ROK 80.5 m² 11053 kr / mån -
Haninge
Hurtigs väg 27B
Inflytt 2026-01-012 ROK 43 m² 10452 kr / mån -
Oskarshamn
Vattugatan 7L
Inflytt 2026-01-012 ROK 63 m² 0 kr / mån -
Sigtuna
Keramikens väg 96
Inflytt 2026-01-012 ROK 63.5 m² 12467 kr / mån -
Sigtuna
Keramikens väg 92
Inflytt 2026-01-012 ROK 59 m² 13104 kr / mån -
Sigtuna
Keramikens väg 90
Inflytt Enligt ö.k.2 ROK 63.5 m² 12467 kr / mån -
Höganäs
Långgatan 47B
Inflytt 2026-02-011 ROK 35 m² 6114 kr / mån -
Landskrona
Regeringsgatan 4
Inflytt 2026-01-012 ROK 64 m² 8677 kr / mån -
Landskrona
Ödmanssonsgatan 34A
Inflytt 2026-01-152 ROK 52 m² 7425 kr / mån -
Uddevalla
Kämpegatan 34
Inflytt 2026-01-011 ROK 38 m² 4664 kr / mån -
Linköping
Söderleden 39E
Inflytt 2026-02-012 ROK 54 m² 9648 kr / mån -
Trollhättan
Hallevadsvägen 5B
Inflytt 2025-12-013 ROK 72 m² 7177 kr / mån -
Kampanj
Skellefteå
Gruvgatan 17B
Inflytt 2026-01-012 ROK 35 m² 8293 kr / mån -
Kampanj
Skellefteå
Gruvgatan 17B
Inflytt Enligt ö.k.2 ROK 35 m² 6793 kr / mån -
Skellefteå
Löftesgränd 55
Inflytt 2026-01-012 ROK 67 m² 8625 kr / mån -
Trollhättan
Österlånggatan 78
Inflytt 2025-12-013 ROK 95 m² 11072 kr / mån -
Karlstad
Infanterigatan 29N
Inflytt 2026-02-012 ROK 40.6 m² 6761 kr / mån -
Karlstad
Infanterigatan 27N
Inflytt 2026-02-012 ROK 40.6 m² 6766 kr / mån -
Karlstad
Infanterigatan 27N
Inflytt 2026-01-012 ROK 40.6 m² 6766 kr / mån -
Karlstad
Infanterigatan 29N
Inflytt 2025-12-012 ROK 40.6 m² 6761 kr / mån -
Karlstad
Infanterigatan 25N
Inflytt 2025-12-012 ROK 40.6 m² 6560 kr / mån -
Karlstad
Infanterigatan 25N
Inflytt 2025-12-012 ROK 40.6 m² 6560 kr / mån -
Eskilstuna
Norra Knoopgatan 2A
Inflytt 2025-12-014 ROK 99 m² 13223 kr / mån -
Eskilstuna
Läkargatan 3 B
Inflytt Enligt ö.k.5 ROK 102 m² 13682 kr / mån -
Karlstad
Infanterigatan 27N
Inflytt 2025-11-012 ROK 40.6 m² 8066 kr / mån -
Karlstad
Infanterigatan 27N
Inflytt 2025-11-012 ROK 40.6 m² 6766 kr / mån -
Karlstad
Infanterigatan 25N
Inflytt 2026-01-012 ROK 51.7 m² 7870 kr / mån -
Karlstad
Infanterigatan 25N
Inflytt 2026-01-012 ROK 51.9 m² 7690 kr / mån -
Karlstad
Infanterigatan 27N
Inflytt 2025-12-012 ROK 51.9 m² 7696 kr / mån -
Karlstad
Infanterigatan 27N
Inflytt 2026-01-012 ROK 51.9 m² 7896 kr / mån -
Karlskrona
Tingsvägen 15 C
Inflytt 2026-03-013 ROK 77 m² 9969 kr / mån -
Karlstad
Infanterigatan 25N
Inflytt 2025-11-012 ROK 51.9 m² 7690 kr / mån -
Höganäs
Långarödsvägen 96 A
Inflytt 2026-01-013 ROK 82.2 m² 10563 kr / mån -
Höganäs
Vattugatan 14
Inflytt 2026-01-011 ROK 35 m² 6114 kr / mån -
Eskilstuna
Läkargatan 5 A
Inflytt 2025-11-014 ROK 82 m² 9323 kr / mån -
Norrtälje
Marknadsvägen 4 A
Inflytt 2026-03-014 ROK 94.5 m² 13540 kr / mån -
Oskarshamn
Vattugatan 9F
Inflytt 2026-02-011 ROK 33.5 m² 3816 kr / mån -
Karlstad
Infanterigatan 27D
Inflytt 2025-12-011 ROK 30.2 m² 6426 kr / mån -
Karlstad
Infanterigatan 29M
Inflytt 2026-01-011 ROK 30.1 m² 6411 kr / mån -
Karlstad
Infanterigatan 27J
Inflytt 2026-02-011 ROK 30.2 m² 6426 kr / mån -
Helsingborg
Pollettgatan 10
Inflytt 2026-02-013 ROK 74.3 m² 11748 kr / mån -
Oskarshamn
Filaregatan 5 A
Inflytt 2026-02-012 ROK 60 m² 7478 kr / mån -
Helsingborg
Pollettgatan 10
Inflytt 2026-02-011 ROK 30.8 m² 6463 kr / mån -
Uddevalla
Barkvägen 10
Inflytt 2026-01-022 ROK 44 m² 5811 kr / mån -
Uddevalla
Södra Drottninggatan 25 B
Inflytt 2026-01-012 ROK 57 m² 7688 kr / mån -
Östersund
Törnstens Gränd 17
Inflytt 2026-01-011 ROK 28 m² 4122 kr / mån -
Karlstad
Infanterigatan 25N
Inflytt 2026-02-012 ROK 51.9 m² 9190 kr / mån -
Karlskrona
Tingsvägen 17 B
Inflytt 2026-02-012 ROK 62.7 m² 8500 kr / mån -
Uddevalla
Södra Hamngatan 16 A
Inflytt 2025-11-012 ROK 62 m² 7117 kr / mån -
Skellefteå
Byalagsgatan 51
Inflytt 2026-02-012 ROK 67 m² 6568 kr / mån -
Falköping
Danska Vägen 64
Inflytt 2026-01-013 ROK 96 m² 7877 kr / mån -
Kampanj
Skellefteå
Gruvgatan 17C
Inflytt Enligt ö.k.2 ROK 48 m² 9693 kr / mån -
Jordbro
Hurtigs väg 21
Inflytt 2026-01-013 ROK 55 m² 12489 kr / mån -
Jordbro
Hurtigs väg 33
Inflytt 2026-02-013 ROK 72 m² 13501 kr / mån -
Jordbro
Rundmössegränd 9
Inflytt 2026-02-014 ROK 85 m² 15759 kr / mån -
Trollhättan
Österlånggatan 78
Inflytt 2026-01-011 ROK 43 m² 6410 kr / mån -
Linköping
Ridderstads gata 24
Inflytt 2026-01-012 ROK 54 m² 9801 kr / mån -
Tierp
Claes Grills Väg 8A
Inflytt 2026-01-013 ROK 72 m² 6890 kr / mån -
Norrtälje
Marknadsvägen 12 B
Inflytt 2026-01-013 ROK 80.5 m² 11895 kr / mån -
Norrtälje
Marknadsvägen 4 C
Inflytt 2026-01-013 ROK 79 m² 10795 kr / mån -
Helsingborg
Annerovägen 2 B
Inflytt 2026-02-012 ROK 65.6 m² 6987 kr / mån -
Södertälje
Astrabacken 6B
Inflytt 2026-01-011 ROK 27 m² 5914 kr / mån -
Södertälje
Nedre Torekällgatan 8
Inflytt 2026-01-012 ROK 61 m² 9583 kr / mån -
Södertälje
Nedre Torekällgatan 8
Inflytt 2026-01-011 ROK 24 m² 5359 kr / mån -
Umeå
Korpralsvägen 46 A
Inflytt 2026-01-011 ROK 25.5 m² 4600 kr / mån -
Växjö
Mörners Väg 52 B
Inflytt 2026-01-012 ROK 51 m² 7307 kr / mån -
Växjö
Mörners Väg 58 C
Inflytt 2026-01-014 ROK 91 m² 10807 kr / mån -
Växjö
Mörners Väg 56 A
Inflytt 2026-01-013 ROK 75 m² 9485 kr / mån -
Växjö
Segerstadsvägen 19E
Inflytt 2025-12-012 ROK 51.5 m² 9075 kr / mån -
Växjö
Segerstadsvägen 21D
Inflytt 2025-12-012 ROK 51.5 m² 8877 kr / mån -
Växjö
Segerstadsvägen 19E
Inflytt 2026-01-012 ROK 52 m² 9125 kr / mån -
Växjö
Kungsvägen 77 A
Inflytt 2026-01-013 ROK 75 m² 8669 kr / mån -
Umeå
Sandaparken 7
Inflytt 2026-01-011 ROK 26.2 m² 3644 kr / mån -
Olofström
Ingenjörsgatan 53 D
Inflytt 2026-02-012 ROK 60 m² 7439 kr / mån -
Olofström
Ingenjörsgatan 55 B
Inflytt 2026-01-013 ROK 60 m² 6922 kr / mån -
Olofström
Ingenjörsgatan 57 A
Inflytt 2026-01-014 ROK 103 m² 8119 kr / mån -
Skellefteå
Löftesgränd 83
Inflytt 2026-01-012 ROK 69 m² 7213 kr / mån -
Linköping
Ridderstads gata 24
Inflytt 2026-01-011 ROK 34.8 m² 6916 kr / mån -
Olofström
Ingenjörsgatan 55 A
Inflytt 2026-02-013 ROK 75 m² 8864 kr / mån -
Olofström
Ingenjörsgatan 57 A
Inflytt 2025-11-012 ROK 60 m² 5115 kr / mån -
Olofström
Västra Storgatan 11 C
Inflytt 2026-01-012 ROK 60 m² 7439 kr / mån -
Skellefteå
Lyckogränd 279
Inflytt 2025-12-014 ROK 102 m² 12172 kr / mån -
Västerås
Pilgatan 31 B
Inflytt 2026-02-012 ROK 59.2 m² 8035 kr / mån -
Tierp
Bangatan 1B
Inflytt Enligt ö.k.1 ROK 46.7 m² 6933 kr / mån -
Tierp
Claes Grills Väg 8B
Inflytt 2025-12-012 ROK 60 m² 8064 kr / mån -
Linköping
Kvinnebyvägen 34
Inflytt 2026-02-013 ROK 85.5 m² 11949 kr / mån -
Linköping
Westmansgatan 104
Inflytt 2026-01-015 ROK 123.4 m² 14300 kr / mån -
Motala
Råssnäsvägen 4
Inflytt 2026-01-013 ROK 65 m² 8154 kr / mån -
Skellefteå
Lyckogränd 233
Inflytt 2025-12-011 ROK 43.3 m² 6526 kr / mån -
Linköping
Ekholmsvägen 6
Inflytt 2026-01-011 ROK 48 m² 5057 kr / mån -
Skellefteå
Lyckogränd 81
Inflytt 2025-11-012 ROK 63 m² 6296 kr / mån -
Skellefteå
Lyckogränd 157
Inflytt 2026-01-014 ROK 103 m² 9431 kr / mån -
Kävlinge
Nordanväg 40 B
Inflytt 2026-01-011 ROK 39 m² 6195 kr / mån -
Uddevalla
Hallavägen 7
Inflytt 2025-12-012 ROK 57 m² 7992 kr / mån -
Oskarshamn
Vattugatan 2B
Inflytt 2025-12-011 ROK 42 m² 4466 kr / mån -
Just nu hyresrabatt!
Karlstad
Infanterigatan 29N
Inflytt 2025-12-012 ROK 40.6 m² 8061 kr / mån -
Karlskrona
Tingsvägen 13 C
Inflytt 2026-01-012 ROK 59 m² 6088 kr / mån -
Karlstad
Infanterigatan 27N
Inflytt 2026-01-012 ROK 40.5 m² 6756 kr / mån -
Landskrona
Larvigatan 31
Inflytt 2026-01-012 ROK 60 m² 8664 kr / mån -
Trelleborg
Östergatan 15a
Inflytt 2025-12-012 ROK 60 m² 9046 kr / mån -
Trelleborg
Östergatan 23F
Inflytt 2026-01-013 ROK 76 m² 10382 kr / mån -
Helsingborg
Annerovägen 22 A
Inflytt 2026-01-012 ROK 65.6 m² 8841 kr / mån -
Kävlinge
V:A Långgatan 18B
Inflytt 2026-01-013 ROK 71.8 m² 11402 kr / mån -
Umeå
Moritzvägen 11
Inflytt 2026-01-011 ROK 18 m² 5329 kr / mån -
Västerås
Genuagatan 3
Inflytt 2026-01-014 ROK 90 m² 14565 kr / mån -
Västerås
Ägirgatan 2
Inflytt 2026-01-014 ROK 73 m² 13858 kr / mån -
Västerås
Genuagatan 5
Inflytt 2026-01-012 ROK 56 m² 9921 kr / mån -
Västerås
Genuagatan 5
Inflytt 2026-01-013 ROK 82 m² 12926 kr / mån -
Västerås
Öster Mälarstrands allé 38
Inflytt 2025-11-012 ROK 36.5 m² 8649 kr / mån -
Falun
Jungfruvägen 91 A
Inflytt 2026-01-012 ROK 64.6 m² 9261 kr / mån -
Nyköping
Runebergsgatan 38
Inflytt Enligt ö.k.2 ROK 69 m² 8608 kr / mån -
Falun
Bruksgatan 4 B
Inflytt 2026-01-013 ROK 84 m² 8063 kr / mån -
Falun
Vallvägen 5 B
Inflytt 2026-01-012 ROK 58 m² 8714 kr / mån -
Trelleborg
Östergatan 17
Inflytt 2025-11-012 ROK 61.5 m² 9604 kr / mån -
Jönköping
Jaktfalksgatan 4J
Inflytt 2026-01-011 ROK 34 m² 6243 kr / mån -
Uddevalla
Kämpegatan 34
Inflytt 2025-11-012 ROK 68 m² 7888 kr / mån -
Stockholm
Hållsätrabacken 15
Inflytt 2025-12-012 ROK 71 m² 9556 kr / mån -
Linköping
Järdalavägen 28B
Inflytt 2026-01-013 ROK 86.5 m² 12042 kr / mån -
Landskrona
Järnvägsgatan 69
Inflytt 2025-12-013 ROK 76 m² 9435 kr / mån -
Landskrona
Skolallén 11B
Inflytt 2026-01-013 ROK 133 m² 14506 kr / mån -
Landskrona
Gjörloffsgatan 13 B
Inflytt 2025-12-013 ROK 75 m² 7811 kr / mån -
Karlstad
Infanterigatan 25N
Inflytt 2026-01-012 ROK 51.9 m² 7690 kr / mån -
Falun
Bruksgatan 3 A
Inflytt 2025-11-011 ROK 37 m² 6555 kr / mån -
Borås
Liljebergsgatan 23
Inflytt 2026-01-013 ROK 80 m² 11775 kr / mån -
Haninge
Rundmössegränd 5
Inflytt 2026-01-014 ROK 85 m² 15643 kr / mån -
Skellefteå
Löftesgränd 27
Inflytt 2026-01-011 ROK 42.8 m² 6191 kr / mån -
Orsa
Frelins Gränd 18
Inflytt 2026-01-013 ROK 92 m² 8973 kr / mån -
Helsingborg
Pollettgatan 8
Inflytt 2025-11-012 ROK 51.1 m² 9332 kr / mån -
Nyköping
Höglundavägen 4
Inflytt 2026-01-013 ROK 75 m² 7203 kr / mån -
Just nu hyresrabatt!
Borlänge
Vallgatan 8 A
Inflytt 2026-01-012 ROK 59.5 m² 9080 kr / mån -
Falun
Jungfruvägen 117 B
Inflytt 2026-01-012 ROK 67.9 m² 9707 kr / mån -
Falun
Jungfruvägen 93 C
Inflytt 2026-01-012 ROK 64.6 m² 9262 kr / mån -
Falun
Jungfruvägen 93 B
Inflytt 2026-01-013 ROK 76.6 m² 10596 kr / mån -
Gävle
Glimmervägen 2
Inflytt 2025-11-022 ROK 35 m² 6679 kr / mån -
Höganäs
Prins Carlsgatan 21 A
Inflytt 2026-02-153 ROK 78.5 m² 10599 kr / mån -
Höganäs
Långarödsvägen 86 B
Inflytt 2026-03-013 ROK 80.6 m² 10442 kr / mån -
Borlänge
Hagavägen 71
Inflytt 2026-01-013 ROK 78.5 m² 8581 kr / mån -
Säter
Kungsvägen 12 B
Inflytt 2026-01-012 ROK 63 m² 6221 kr / mån -
Kampanj
Skellefteå
Gruvgatan 17C
Inflytt Enligt ö.k.2 ROK 49 m² 8100 kr / mån -
Skellefteå
Lyckogränd 261
Inflytt 2025-12-013 ROK 72 m² 7098 kr / mån -
Ludvika
Fredsgatan 8 A
Inflytt 2026-01-014 ROK 77 m² 10551 kr / mån -
Kampanj
Skellefteå
Brännsvedjevägen 180
Inflytt 2025-11-012 ROK 69 m² 6092 kr / mån -
Kampanj
Skellefteå
Brännsvedjevägen 80
Inflytt Enligt ö.k.2 ROK 67 m² 6313 kr / mån -
Just nu hyresrabatt!
Sundsvall
Hammarvägen 3
Inflytt 2025-12-013 ROK 82.5 m² 8726 kr / mån -
Orsa
Frelins Gränd 18
Inflytt 2026-01-012 ROK 67 m² 6382 kr / mån -
Skellefteå
Lyckogränd 149
Inflytt 2025-12-012 ROK 63 m² 7175 kr / mån -
Skellefteå
Lyckogränd 145
Inflytt 2025-12-011 ROK 43.3 m² 6597 kr / mån -
Orsa
Frelins Gränd 16
Inflytt 2026-01-012 ROK 74 m² 6592 kr / mån -
Uddevalla
Kungsgatan 38 A
Inflytt 2025-11-011 ROK 30 m² 5248 kr / mån -
Just nu hyresrabatt!
Borlänge
Bondegatan 9 B
Inflytt 2026-01-012 ROK 59.5 m² 9144 kr / mån -
Just nu hyresrabatt!
Borlänge
Hagavägen 76 C
Inflytt 2026-01-012 ROK 59.5 m² 9192 kr / mån -
Östersund
Färjemansgatan 18 A
Inflytt 2026-01-012 ROK 52 m² 9164 kr / mån -
Säter
Östra Långgatan 12 B
Inflytt 2026-01-012 ROK 66 m² 5991 kr / mån -
Säter
Kristinegatan 8 A
Inflytt 2025-11-014 ROK 90 m² 8790 kr / mån -
Falköping
Storgatan 8A
Inflytt 2025-11-013 ROK 86 m² 7617 kr / mån -
Uddevalla
Hallavägen 11
Inflytt 2025-11-011 ROK 25 m² 3400 kr / mån -
Uddevalla
Kilbäcksgatan 38
Inflytt 2026-01-013 ROK 91 m² 10375 kr / mån -
Oskarshamn
Vattugatan 2B
Inflytt 2025-11-011 ROK 36 m² 3996 kr / mån -
Göteborg
Keplers Gata 44
Inflytt 2026-01-013 ROK 74 m² 9416 kr / mån -
Kampanj
Skellefteå
Gruvgatan 17C
Inflytt 2025-11-013 ROK 72 m² 11007 kr / mån -
Oskarshamn
Vattugatan 8
Inflytt 2026-01-011 ROK 39 m² 5133 kr / mån -
Östersund
Kyrkgatan 44
Inflytt 2025-12-011 ROK 28 m² 5724 kr / mån -
Höganäs
Långarödsvägen 78 A
Inflytt 2026-01-013 ROK 80.6 m² 10342 kr / mån -
Stockholm
Tätorpsvägen 21 B
Inflytt 2026-01-012 ROK 76 m² 10717 kr / mån -
Just nu hyresrabatt!
Avesta
Åsgårdsvägen 15 A
Inflytt 2026-01-011 ROK 38 m² 6461 kr / mån -
Borås
Liljebergsgatan 13
Inflytt 2026-01-012 ROK 65 m² 9917 kr / mån -
Just nu hyresrabatt!
Sundsvall
Hammarvägen 17
Inflytt Enligt ö.k.3 ROK 82.5 m² 8489 kr / mån -
Trelleborg
Nygatan 70
Inflytt 2025-12-012 ROK 55 m² 8062 kr / mån -
Trelleborg
Östergatan 23f
Inflytt 2025-12-012 ROK 60 m² 8300 kr / mån -
Ludvika
Eriksgatan 3 B
Inflytt 2026-01-012 ROK 44 m² 6652 kr / mån -
Just nu hyresrabatt!
Borlänge
Hagavägen 76 B
Inflytt 2026-01-012 ROK 59.5 m² 9144 kr / mån -
Haninge
Hurtigs väg 29
Inflytt 2025-12-013 ROK 55 m² 11475 kr / mån -
Säter
Kungsvägen 3 A
Inflytt 2026-01-014 ROK 103 m² 10087 kr / mån -
Ulricehamn
Norra Kullagatan 4
Inflytt 2026-01-012 ROK 55 m² 10847 kr / mån -
Oskarshamn
Vattugatan 8
Inflytt 2026-01-012 ROK 66 m² 6954 kr / mån -
Gävle
Glimmervägen 15B
Inflytt 2025-12-013 ROK 75 m² 7419 kr / mån -
Just nu hyresrabatt!
Olofström
Ingenjörsgatan 55 B
Inflytt 2025-08-013 ROK 75 m² 8864 kr / mån -
Gävle
Nygårdsvägen 16
Inflytt 2025-12-012 ROK 60 m² 7599 kr / mån -
Tierp
Tamms Väg 19A
Inflytt 2025-12-014 ROK 92 m² 9694 kr / mån -
Just nu hyresrabatt!
Avesta
Axel Johnsons Väg 121 C
Inflytt Enligt ö.k.2 ROK 63 m² 9043 kr / mån -
Växjö
Mörners Väg 58 B
Inflytt 2026-01-013 ROK 75 m² 10106 kr / mån -
Avesta
Åsgårdsvägen 15 A
Inflytt Enligt ö.k.1 ROK 38 m² 4359 kr / mån -
Avesta
Jämtbovägen 15 B
Inflytt Enligt ö.k.2 ROK 56.5 m² 6139 kr / mån -
Västerås
Öster Mälarstrands allé 38
Inflytt 2025-12-012 ROK 53.5 m² 10309 kr / mån -
Uddevalla
Kungsgatan 38 B
Inflytt 2025-11-014 ROK 91 m² 9074 kr / mån -
Ulricehamn
Norra Kullagatan 4
Inflytt Enligt ö.k.2 ROK 46 m² 9820 kr / mån -
Ulricehamn
Norra Kullagatan 4
Inflytt Enligt ö.k.2 ROK 45 m² 9706 kr / mån -
Ulricehamn
Norra Kullagatan 4
Inflytt Enligt ö.k.2 ROK 45 m² 9706 kr / mån -
Ulricehamn
Norra Kullagatan 4
Inflytt 2026-01-013 ROK 73 m² 12245 kr / mån -
Ulricehamn
Norra Kullagatan 4
Inflytt Enligt ö.k.3 ROK 75 m² 13587 kr / mån -
Borås
Liljebergsgatan 23
Inflytt 2025-12-012 ROK 65 m² 9917 kr / mån -
Falun
Jungfruvägen 151 C
Inflytt 2025-12-011 ROK 45.4 m² 7274 kr / mån -
Karlshamn
Bygatan 22 L
Inflytt 2025-12-013 ROK 76 m² 6459 kr / mån -
Olofström
Ingenjörsgatan 51 F
Inflytt 2025-12-014 ROK 94 m² 7868 kr / mån -
Borås
Liljebergsgatan 23
Inflytt Enligt ö.k.3 ROK 80 m² 11775 kr / mån -
Växjö
Mörners Väg 50 A
Inflytt 2025-12-013 ROK 75 m² 9728 kr / mån -
Ulricehamn
Norra Kullagatan 4
Inflytt 2026-01-012 ROK 45 m² 8897 kr / mån -
Tierp
Nygatan 21A
Inflytt 2025-12-013 ROK 82 m² 7576 kr / mån -
Flexibel inflytt
Växjö
Kungsvägen 77 A
Inflytt Enligt ö.k.3 ROK 77 m² 10137 kr / mån -
Växjö
Mörners Väg 58 B
Inflytt Enligt ö.k.3 ROK 75 m² 9213 kr / mån -
Flexibel inflytt
Växjö
Segerstadsvägen 21D
Inflytt Enligt ö.k.2 ROK 59.5 m² 9571 kr / mån -
Växjö
Mörners Väg 50 B
Inflytt 2025-12-012 ROK 51 m² 7396 kr / mån -
Uddevalla
Erik Dahlbergsgatan 36
Inflytt 2025-12-012 ROK 44 m² 6059 kr / mån -
Kävlinge
Svens Gränd 2
Inflytt Enligt ö.k.1 ROK 23.8 m² 5156 kr / mån -
Trollhättan
Elviusgatan 3B
Inflytt 2025-12-011 ROK 33 m² 6315 kr / mån -
Karlshamn
Bygatan 22 A
Inflytt 2025-10-073 ROK 78 m² 8894 kr / mån -
Karlshamn
Bygatan 22 B
Inflytt 2025-11-013 ROK 78 m² 8931 kr / mån -
Karlshamn
Bygatan 22 M
Inflytt 2025-11-013 ROK 76 m² 9153 kr / mån -
Just nu hyresrabatt!
Olofström
Ingenjörsgatan 51 C
Inflytt 2025-09-012 ROK 60 m² 7438 kr / mån -
Just nu hyresrabatt!
Olofström
Ingenjörsgatan 51 F
Inflytt 2025-10-014 ROK 94 m² 10371 kr / mån -
Just nu hyresrabatt!
Olofström
Ingenjörsgatan 53 B
Inflytt 2025-12-013 ROK 75 m² 8864 kr / mån -
Olofström
Ingenjörsgatan 55 C
Inflytt 2025-07-013 ROK 75 m² 6969 kr / mån -
Kävlinge
Svens Gränd 2
Inflytt Enligt ö.k.1 ROK 17.9 m² 3878 kr / mån -
Ulricehamn
Norra Kullagatan 4
Inflytt Enligt ö.k.3 ROK 84 m² 14614 kr / mån -
Uddevalla
Elsebergsgatan 24 A
Inflytt 2025-12-012 ROK 62 m² 6991 kr / mån -
Sigtuna
Keramikens väg 90
Inflytt 2025-12-012 ROK 65 m² 12998 kr / mån -
Upplands Väsby
Hasselgatan 12
Inflytt 2025-12-013 ROK 76 m² 10473 kr / mån -
Falköping
Södra Torggränd 3
Inflytt 2025-12-013 ROK 74 m² 9958 kr / mån -
Västerås
Poseidongatan 3
Inflytt 2025-12-012 ROK 46.5 m² 9971 kr / mån -
Borås
Liljebergsgatan 29
Inflytt 2026-01-013 ROK 79 m² 11660 kr / mån -
Borlänge
Hagavägen 78 B
Inflytt 2025-12-013 ROK 76.7 m² 8092 kr / mån -
Säter
Kungsvägen 3 B
Inflytt 2025-12-013 ROK 102 m² 8864 kr / mån -
Landskrona
Vasagatan 45
Inflytt 2026-02-152 ROK 54 m² 7297 kr / mån -
Uddevalla
Erik Dahlbergsgatan 36
Inflytt Enligt ö.k.2 ROK 52 m² 6994 kr / mån -
Landskrona
Ödmanssonsgatan 33
Inflytt 2025-11-012 ROK 61.5 m² 7177 kr / mån -
Falun
Jungfruvägen 151 A
Inflytt 2025-12-012 ROK 66.9 m² 9623 kr / mån -
Falun
Vallvägen 4 B
Inflytt 2025-12-012 ROK 58 m² 8710 kr / mån -
Borås
Liljebergsgatan 35
Inflytt 2025-12-013 ROK 80 m² 11780 kr / mån -
Olofström
Ingenjörsgatan 55 C
Inflytt 2025-10-012 ROK 60 m² 5175 kr / mån -
Falun
Jungfruvägen 105 B
Inflytt 2025-12-011 ROK 45.4 m² 7275 kr / mån -
Växjö
Segerstadsvägen 21D
Inflytt 2025-12-012 ROK 59.5 m² 9571 kr / mån -
Söderhamn
Oxtorgsgatan 8E
Inflytt 2025-11-015 ROK 117.1 m² 11299 kr / mån -
Söderhamn
Oxtorgsgatan 8A
Inflytt 2025-11-011 ROK 37.8 m² 4300 kr / mån -
Orsa
Kung Gustavs Väg 4 B
Inflytt 2025-12-013 ROK 107 m² 9748 kr / mån -
Skellefteå
Vintergatan 19B
Inflytt 2026-01-012 ROK 40 m² 6002 kr / mån -
Säter
Vasagatan 6
Inflytt Enligt ö.k.2 ROK 65 m² 6370 kr / mån -
Växjö
Segerstadsvägen 19E
Inflytt 2025-11-012 ROK 51.5 m² 9075 kr / mån -
Skellefteå
Stackgatan 14A
Inflytt Enligt ö.k.2 ROK 63 m² 8957 kr / mån -
Skellefteå
Björkhammargatan 28A
Inflytt 2025-12-013 ROK 67 m² 8353 kr / mån -
Skellefteå
Björkhammargatan 28B
Inflytt 2025-12-013 ROK 67 m² 8353 kr / mån -
Skellefteå
Lyckogränd 77
Inflytt Enligt ö.k.2 ROK 55 m² 8171 kr / mån -
Borås
Liljebergsgatan 49
Inflytt 2025-12-012 ROK 65 m² 9917 kr / mån -
Just nu hyresrabatt!
Borlänge
Hagavägen 78 A
Inflytt 2025-12-012 ROK 59.5 m² 8990 kr / mån -
Just nu hyresrabatt!
Borlänge
Hagavägen 80 B
Inflytt 2025-12-012 ROK 59.5 m² 8870 kr / mån -
Ulricehamn
Norra Kullagatan 4
Inflytt 2026-01-013 ROK 81 m² 13082 kr / mån -
Borlänge
Vallgatan 6 B
Inflytt 2025-12-012 ROK 59.5 m² 9144 kr / mån -
Just nu hyresrabatt!
Tierp
Nygatan 23C
Inflytt 2025-11-012 ROK 64 m² 6059 kr / mån -
Just nu hyresrabatt!
Tierp
Claes Grills Väg 2C
Inflytt 2025-11-012 ROK 57 m² 5805 kr / mån -
Falköping
Danska Vägen 64
Inflytt 2025-11-012 ROK 82 m² 6837 kr / mån -
Just nu hyresrabatt!
Sundsvall
Hammarvägen 5
Inflytt Enligt ö.k.3 ROK 82.5 m² 8575 kr / mån -
Uddevalla
Bangatan 7
Inflytt 2025-12-011 ROK 28 m² 4171 kr / mån -
Karlshamn
Bygatan 22 F
Inflytt 2025-12-013 ROK 82 m² 9275 kr / mån -
Kampanj
Halmstad
Norra Vägen 23
Inflytt 2025-11-012 ROK 69 m² 11109 kr / mån -
Västerås
Najadgatan 4
Inflytt 2025-12-012 ROK 52.5 m² 10768 kr / mån -
Karlshamn
Bygatan 22 E
Inflytt 2025-10-013 ROK 82 m² 6945 kr / mån -
Västerås
Najadgatan 4
Inflytt Enligt ö.k.2 ROK 55 m² 11281 kr / mån -
Norrtälje
Marknadsvägen 8 A
Inflytt 2026-01-013 ROK 79.5 m² 11681 kr / mån -
Landskrona
Ödmanssonsgatan 34A
Inflytt 2025-12-012 ROK 64 m² 8141 kr / mån -
Uddevalla
Timmermansgatan 7B
Inflytt 2026-01-013 ROK 68 m² 8392 kr / mån -
Just nu hyresrabatt!
Borlänge
Vallgatan 10 B
Inflytt 2025-12-012 ROK 59.5 m² 8960 kr / mån -
Landskrona
Gjörloffsgatan 13 A
Inflytt Enligt ö.k.3 ROK 95 m² 11324 kr / mån -
Skövde
Westers väg 4
Inflytt 2025-11-012 ROK 71 m² 8385 kr / mån -
Ludvika
Eriksgatan 15
Inflytt Enligt ö.k.4 ROK 123 m² 14242 kr / mån -
Gävle
Glimmervägen 2
Inflytt Enligt ö.k.2 ROK 42 m² 7528 kr / mån -
Just nu hyresrabatt!
Olofström
Västra Storgatan 11 E
Inflytt 2025-11-012 ROK 60 m² 7580 kr / mån -
Just nu hyresrabatt!
Borlänge
Bondegatan 9 C
Inflytt Enligt ö.k.2 ROK 59.5 m² 9140 kr / mån -
Borås
Liljebergsgatan 47
Inflytt 2025-12-013 ROK 80 m² 11785 kr / mån -
Västerås
Neptungatan 3
Inflytt Enligt ö.k.2 ROK 44 m² 9115 kr / mån -
Uddevalla
Lagerbergsgatan 17B
Inflytt Enligt ö.k.3 ROK 60 m² 10307 kr / mån -
Karlstad
Infanterigatan 25N
Inflytt 2025-12-013 ROK 65.3 m² 10920 kr / mån -
Just nu hyresrabatt!
Borlänge
Bondegatan 11 C
Inflytt 2025-11-012 ROK 59.5 m² 8959 kr / mån -
Västerås
Najadgatan 4
Inflytt 2025-11-012 ROK 55 m² 10711 kr / mån -
Höganäs
Långarödsvägen 84 C
Inflytt 2025-11-011 ROK 43.5 m² 6552 kr / mån -
Borås
Engelbrektsgatan 109
Inflytt 2025-11-012 ROK 68 m² 9741 kr / mån -
Just nu hyresrabatt!
Sundsvall
Hammarvägen 27
Inflytt Enligt ö.k.3 ROK 82.5 m² 8744 kr / mån -
Just nu hyresrabatt!
Sundsvall
Hammarvägen 29
Inflytt Enligt ö.k.3 ROK 82.5 m² 8489 kr / mån -
Flexibel inflytt
Sundsvall
Klintgatan 9
Inflytt Enligt ö.k.1 ROK 25 m² 5176 kr / mån -
Falun
Jungfruvägen 145 A
Inflytt 2026-01-012 ROK 67.9 m² 9535 kr / mån -
Eskilstuna
Norra Knoopgatan 2A
Inflytt Enligt ö.k.2 ROK 60 m² 8843 kr / mån -
Norrtälje
Marknadsvägen 8 A
Inflytt 2025-12-011 ROK 48 m² 7823 kr / mån -
Västerås
Genuagatan 3
Inflytt 2025-12-012 ROK 47 m² 9050 kr / mån -
Västerås
Genuagatan 9
Inflytt Enligt ö.k.2 ROK 56 m² 9921 kr / mån -
Just nu hyresrabatt!
Västerås
Genuagatan 7
Inflytt Enligt ö.k.2 ROK 47 m² 9050 kr / mån -
Karlshamn
Bygatan 22 A
Inflytt 2025-09-013 ROK 78 m² 8894 kr / mån -
Trea till priset av en tvåa
Karlshamn
Bygatan 22 M
Inflytt 2025-08-013 ROK 76 m² 8745 kr / mån -
Landskrona
Östergatan 147 A
Inflytt Enligt ö.k.3 ROK 88 m² 10193 kr / mån -
Eskilstuna
Nyforsgatan 29
Inflytt Enligt ö.k.2 ROK 59 m² 7515 kr / mån -
Borås
Liljebergsgatan 39
Inflytt 2025-11-013 ROK 80 m² 11775 kr / mån -
Just nu hyresrabatt!
Sundsvall
Hammarvägen 9
Inflytt Enligt ö.k.3 ROK 82.5 m² 8699 kr / mån -
Kampanj
Skellefteå
Byalagsgatan 89
Inflytt Enligt ö.k.2 ROK 67 m² 7471 kr / mån -
Skellefteå
Lyckogränd 321
Inflytt Enligt ö.k.2 ROK 55 m² 8295 kr / mån -
Falköping
Danska Vägen 64
Inflytt Enligt ö.k.1 ROK 47 m² 8103 kr / mån -
Västerås
Öster Mälarstrands allé 34
Inflytt Enligt ö.k.2 ROK 49 m² 9756 kr / mån -
Landskrona
Järnvägsgatan 17B
Inflytt Enligt ö.k.3 ROK 94 m² 12102 kr / mån -
Skellefteå
Vintergatan 11 A
Inflytt Enligt ö.k.2 ROK 48 m² 6628 kr / mån -
Falköping
Storgatan 4
Inflytt Enligt ö.k.3 ROK 83 m² 10670 kr / mån -
Avesta
Hyttgränd 4 A
Inflytt Enligt ö.k.2 ROK 59 m² 6030 kr / mån -
Uddevalla
Vintergatan 11
Inflytt Enligt ö.k.2 ROK 54 m² 6961 kr / mån -
Landskrona
Bredgatan 3B
Inflytt Enligt ö.k.4 ROK 88 m² 11125 kr / mån -
Kampanj
Skellefteå
Byalagsgatan 113
Inflytt Enligt ö.k.2 ROK 67 m² 6313 kr / mån -
Ulricehamn
Norra Kullagatan 4
Inflytt Enligt ö.k.3 ROK 84 m² 14614 kr / mån -
Skellefteå
Björkhammargatan 30A
Inflytt Enligt ö.k.2 ROK 40 m² 6002 kr / mån -
Skellefteå
Vintergatan 19A
Inflytt Enligt ö.k.1 ROK 29 m² 4728 kr / mån -
Skellefteå
Vintergatan 19A
Inflytt Enligt ö.k.1 ROK 29 m² 4728 kr / mån -
Skellefteå
Vintergatan 19B
Inflytt Enligt ö.k.1 ROK 29 m² 4728 kr / mån -
Falköping
Storgatan 4
Inflytt Enligt ö.k.3 ROK 83 m² 11167 kr / mån -
Just nu hyresrabatt!
Tierp
Ängsbacksvägen 8
Inflytt Enligt ö.k.2 ROK 64.5 m² 8105 kr / mån -
Just nu hyresrabatt!
Tierp
Claes Grills Väg 2B
Inflytt Enligt ö.k.2 ROK 57 m² 8247 kr / mån